欢迎光临0731房产网
长沙站
株洲站
湘潭站
设为首页
加入收藏
广告服务
佳佳置业小帮手
0731手机网
0731楼市会
《长沙楼市》
中城房网
武汉
深圳
厦门
合肥
西安
无锡
长沙
南昌
赣州
0731新房网
长沙站
湘潭站
株洲站
首页
新房网
团购网
视频网
地产研究院
二手房网
家装网
楼市论坛
返回首页
|
楼盘比一比
|
最新开盘
|
全景看房
|
地图找房
|
房产团
|
看房车
|
大熊看楼
|
楼市排行
|
业主论坛
新闻中心
慧眼看市
行业警示
新房
楼盘导购
大熊看楼
二手房
挂牌房源
金牌门店
地产研究
市场监测
潇湘楼语
家装
家装资讯
装修图库
论坛
楼市话题
业主论坛
视频
全景看房
视频展播
团房
看房车
房产团
0731
楼市会
庐山恋金岭
普通住宅
访问人数:
33062
教育楼盘
楼盘首页
项目详情
楼盘快讯
楼盘相册
业主论坛
社会监督
更新时间:2018-06-21
楼盘速查:
区县/地段
天心区
雨花区
芙蓉区
岳麓区
开福区
长沙县
浏阳市
望城区
宁乡县
热点片区
中心板块
省府南城板块
武广新城板块
北城板块
伍家岭-月湖板块
马王堆板块
东站板块
麓南含浦板块
梅溪湖板块
麓谷板块
金星北板块
暮云板块
星沙板块
市府板块
地铁线路
1号线
2号线
3号线
4号线
5号线
6号线
城际轻轨
装修状态
毛胚房
精装修
价格范围
4000元以下
4000-5000元
5000-6000元
6000-8000元
8000-10000元
10000元以上
庐山恋金岭
25
张图片
户型图(6)
其它居室(6)
交通图(1)
效果图(12)
实景图(3)
配套图(3)
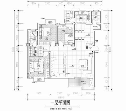
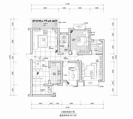
户型:
户型:
户型:
户型:
户型:
户型:
总数6条,第1页/共1页
1
周边楼盘相册推荐
株洲中建玥熙台
株洲中建江湾壹号
近期楼盘更新相册推荐
中国铁建·梦想·龙隐台
邦泰·璟和
嘉信·洋湖锦玉
绿城柳畔听澜